• Luxury modular container house
  • Shelter for airbnb

Rapid Delivery for Shipping Container Toilet Blocks - 3x40ft Modified shipping container house . – HK prefab

Short Description:


Product Detail

Product Tags

Related Video

Feedback (2)

We try for excellence, service the customers", hopes to be the most effective cooperation workforce and dominator company for staff, suppliers and shoppers, realizes price share and ongoing marketing for Slide And Fold Patio Doors, Mobile Home Sheetrock Panels, Ready Wall Panels, We welcome new and old customers from all walks of life to contact us for future business relationships and mutual success!
Rapid Delivery for Shipping Container Toilet Blocks - 3x40ft Modified shipping container house . – HK prefab Detail:

 3X 40ft modified prefabricated  shipping container .

 

Factory-built container homes are built from new brand ISO standard shipping  containers with BV and CSC certification . These containers are in good shape, without dents or rust, so they are nice for building with, instead of containers that have gone ‘out-of-service’ and may be damaged from years of use. We cut the hole for doors and windows , weld the metal studs to reinfore the structure , put the insulation ( polyurethan , rock wool, xps etc. can be options ) for floor , wall and roof  , we modified the house like tranditional house to give you a comfortable feeling.  

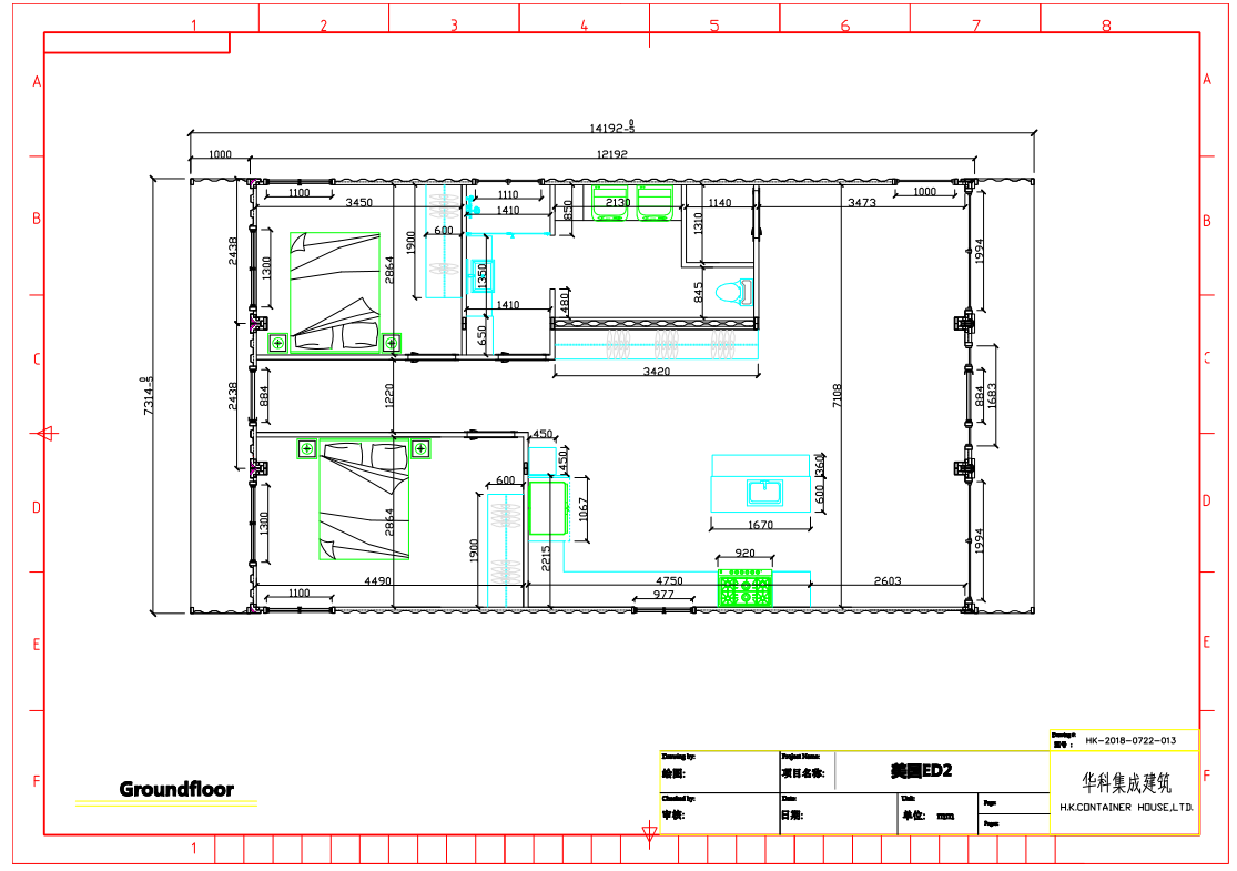
The floor plan for this prefabricated containe house . 

floor plan

 

The proposal on this unite 

ED2-02

 

 Weld the metal stud to reinforce the container structure . 

 

 

Finish interior at factory :

Kitchen

81

 

Bathroom finish

65

 

Bedroom and wardrobe

20

 

 If you are willing to get more infomation on this house, welcome to send us email .  

[email protected] 

 whatsapp: oo86 13707031380

 


Product detail pictures:

Rapid Delivery for Shipping Container Toilet Blocks - 3x40ft Modified shipping container house . – HK prefab detail pictures

Rapid Delivery for Shipping Container Toilet Blocks - 3x40ft Modified shipping container house . – HK prefab detail pictures

Rapid Delivery for Shipping Container Toilet Blocks - 3x40ft Modified shipping container house . – HK prefab detail pictures


Related Product Guide:

We've been convinced that with joint efforts, the enterprise between us will bring us mutual benefits. We could guarantee you item excellent and aggressive price tag for Rapid Delivery for Shipping Container Toilet Blocks - 3x40ft Modified shipping container house . – HK prefab , The product will supply to all over the world, such as: Durban, Iraq, South Korea, You can always find the solutions you have to have in our company! Welcome to inquire us about our product and anything we know and we can help in auto spare parts. We have been looking forward to work with you for a win-win situation.
  • This company has the idea of "better quality, lower processing costs, prices are more reasonable", so they have competitive product quality and price, that's the main reason we chose to cooperate.
    5 StarsBy Ida from Sydney - 2017.06.19 13:51
    Cooperate with you every time is very successful, very happy. Hope that we can have more cooperation!
    5 StarsBy John from Dubai - 2018.06.26 19:27
    Write your message here and send it to us

    Related products

    • Wholesale Container Home On Wheels - Two bedroom prefabricated house – HK prefab

      Wholesale Container Home On Wheels - Two bedro...

      Product Detail View From top View From The Front Floor plan Product description This house is built by ISO standards shipping containers , these containers are built with the toughest of corrugated steel , with tubular steel frames. They come equipped with marine grade flooring (28mm thickness ) . they are built to stack easily one opon the other , it makes you very easy if you want to enlarge your home after it built . The shipping container homes are ...

    • Well-designed Bifold Swing Door - Bi-fold door / foldabel door  – HK prefab

      Well-designed Bifold Swing Door - Bi-fold door...

      Bi-fold aluminum alloy door . Hard ware details . The door items .

    • New Fashion Design for Folding Sliding Doors Exterior - New Series of casement Window with Double Tempered Glass Aluminum thermal break system .  – HK prefab

      New Fashion Design for Folding Sliding Doors Ex...

      Material: Aluminum Alloy Open Style: Opening Frame Material: Aluminum Alloy Screen Netting Material: Fiberglass Style: Brief Opening Pattern: Horizontal Specification Item Name Designer Aluminium Sliding Window Aluminium Profile Top-grade thermal break for Aluminium Sliding Window Standard non-thermal break for Aluminium Sliding Window Normal aluminum profile for Aluminium Sliding Window Customized aluminum profile for Aluminium Sliding Window Dimension Can be customized for Aluminium Sliding...

    • Lowest Price for Aluminium Window Warehouse - Comfortable modern nature trailer house /caravan . – HK prefab

      Lowest Price for Aluminium Window Warehouse - ...

      Smart design caravan of trailer house power by solar panel . CONSTRUCTION: ★ Light steel frame ★ Polyurethane foam insulation ★ Gloss fiberglass sheet on both sides ★ OSB plywood base board, Integrated wall panels ★ Led spot lights THERMAL: ★ R-14 Wall Insulation ★ R-14 Floor Insulation ★ R-20 Ceiling Insulation FLOOR COVERING: ★ Stone and plastic composted floor, wood style. PLUMBING / HEATING: ★ Electric layout following engineer plan confirm, with wire ,sockets , switches , safety brea...

    • Factory Free sample Double Layer Glazing Aluminum Windows - Bi-fold door / foldabel door  – HK prefab

      Factory Free sample Double Layer Glazing Alumin...

      Bi-fold aluminum alloy door . Hard ware details . The door items .

    • Factory Price For Sliding Glass Door Aluminum Frame – Aluminium windows – HK prefab

      Factory Price For Sliding Glass Door Aluminum F...

      Product Detail Good quality thermal break aluminium Hurricane-proof casement windows . Basic Info Model NO. Aluminum Casement Window Style European Opening Pattern Fixed Arched Window Function Heat Insulation, Sound-proof, Anti-Theft, Air-proof, Insect-proof, Decoration, Heat Insulation, Sound Proof, Air Tightness Surface Finishing Powder Coated Security Rating Good secure Glass 5mm+9ar+5mm Safety Toughened Glass, Triple Glazing Hardware&Accessories Germany Or...