0102030405
Lgs Steel/Customized Modular/Prefabricated/Fabricated/Prefab House with Steel Frame/Steel Structure
The main Material to build the LGS house.

Main Structure of the Light Gauge Steel House .

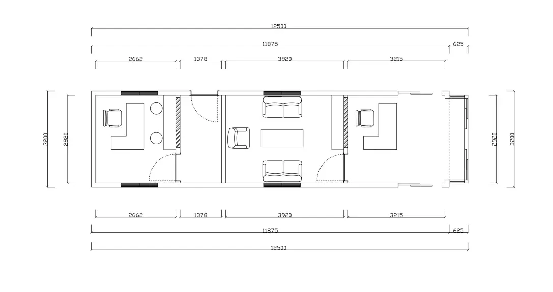
Floor Plan

Rendering photos proposal

















Contianer Toilet
