0102030405
40ft luxury single bedroom shipping prefab modular container house with upper deck
This luxury prefab container house is modified from a new brand 1X 40ft HC ISO standard shipping container with BV OR CSC certification
Specification:
- Modified from 1* 40ft HQ new ISO Standard shipping container.
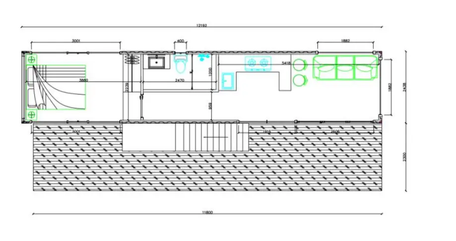
- Original container size : L12192×W2438×H2896mm.
- House area : 30m2
- Deck area : 57m
- Stair : one se
Floor Plan

Rendering photo




Living Area :Floor-to-ceiling sliding glass doors (connecting to ground-level patio),

Kitchen: Custom cabinetry (multiple colors and materials are available for option), or customer's need as quartz countertops, integrated appliances (mini-fridge, induction cooktop, microwave, dishwasher)


Master Bedroom: Queen-size bed , closet (custom built), blackout curtains


Bathroom: Rainfall shower, porcelain sink, water-saving toilet, heated towel rack, and premium tile finishes (marble or ceramic for option)





Contianer Toilet







